Aussegnungshalle, Sinzheim

“Linearität, Halt, Erde, Schwelle, Übergang”

— LEITGEDANKEN

 

Aufgabenstellung (2. Semester)

Ausarbeitung des vorgeschriebenen Raumprogramms unter Berücksichtigung der folgenden Punkte:


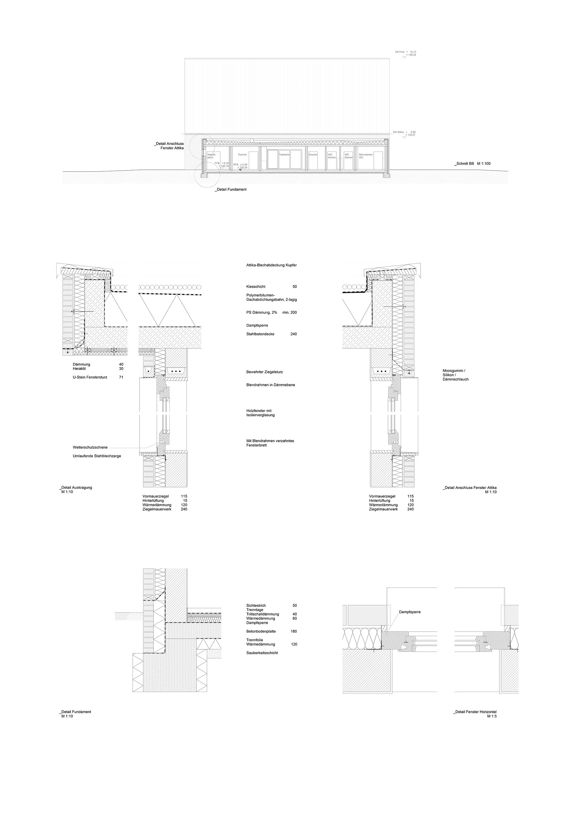
- Baukonstruktion

- Bauphysik ( Sonnen-, Feuchte-, Schallschutz, Energiebedarfsrechnung )

- Vorgeschriebenes Material in diesem Semester: Mauerwerk/Klinker

- Gebäudetechnik ( Entwässerungskonzept, Frischwasserplanung )

- Tragwerk ( Schnee, Wind, Eigenlast, Verkehrslastberechnung )


 

Umsetzung

Verflechtung des funktionellen Verwaltungsbaus mit dem Sakralbau.
Erreicht wird dies durch ein lineares Konzept, welches die Effizienz der Verwaltung erhöht, gleichzeitig aber auch den Angehörigen Halt in aufgewühlten Zeiten gibt und eine ruhige und auffangende Geste ausstrahlt.

Sicht-Beziehungen

Wegeführung


Pläne

 

Das Projekt wurde während des zweiten Semesters im Rahmen des Integrierten Projektes in Partnerarbeit entwickelt.

Das Projekt wurde mit dem BEST-OF Award der Fakultät ausgezeichnet.

Zur Übersicht